Property Detail

190 Chestnut Ave

New Braunfels TX 78130

$408,000

Status: Active

Property Details

Description

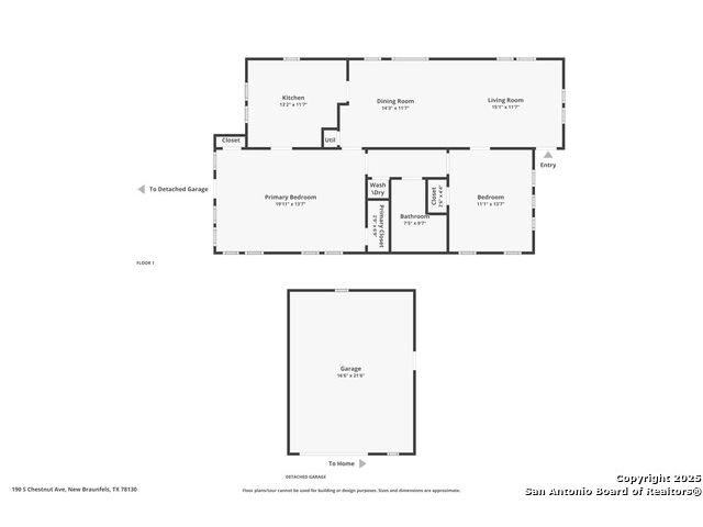
This property is a short sale. Charming 2-bedroom, 1-bath home offering 1,100 sq. ft. of living space on a 0.18-acre corner lot. This well-maintained home showcases timeless character with original wood floors, detailed wood trim, and beautifully framed windows and doors throughout. This thoughtfully designed layout offers a comfortable and functional flow, with all living areas conveniently situated on one level. The open living and dining spaces connect seamlessly, creating a welcoming environment for gatherings and everyday living. The kitchen sits just off the dining room for easy meal service and features direct access to the utility area for added convenience. The primary bedroom features multiple closets and a door leading to the backyard, providing direct access to the detached single-car garage. The bathroom and secondary bedroom are positioned nearby for comfort and accessibility. Overall, the floor plan blends openness with efficient use of space for relaxed living. Recent updates include a refreshed kitchen, new hot water tank, interior paint, and updated landscaping. Additional highlights include a durable metal roof, fenced yard, and desirable corner lot location. In great shape and full of original charm, this home combines classic craftsmanship with modern updates - only minutes from H-E-B Plus, and just a mile from downtown New Braunfels, offering easy access to other local shops, dining, and entertainment.

Map Location

Listing provided courtesy of Christopher Watters of Watters International Realty. Last updated 2025-10-24 11:01:41.000000. Listing information © 2025 LERA MLS.

Michelle Doerr

Texas Licensed Real Estate Broker #0424230
Inquire Now
admin Real estate https://static.royacdn.com/Site-f5d1045a-1c2b-4719-a298-72f1862107a5/team/Michelle_new_photo.jpg realtor # # # https://static.royacdn.com/Site-f5d1045a-1c2b-4719-a298-72f1862107a5/team/Michelle_new_photo.jpg Doerr Realty - Best Realtors in San Antonio, Buy and Sell Your Home in Texas Best realtor in San Antonio TX. We specialize in residential real estate and luxury home sales throughout Texas. Call us to buy or sell your home Doerr Realty https://www.royacdn.com/unsafe/Site-f5d1045a-1c2b-4719-a298-72f1862107a5/MISC/SBP_DoerrRealty_Michelle_Front.jpg @michellesells Doerr Realty Doerr Realty - Best Realtors in San Antonio, Buy and Sell Your Home in Texas Best realtor in San Antonio TX. We specialize in residential real estate and luxury home sales throughout Texas. Call us to buy or sell your home! https://www.royacdn.com/unsafe/Site-f5d1045a-1c2b-4719-a298-72f1862107a5/MISC/SBP_DoerrRealty_Michelle_Front.jpg