Property Detail

668 Indian Mound

Tarpley TX 78883

$1,325,000

Status: Active

Property Details

Description

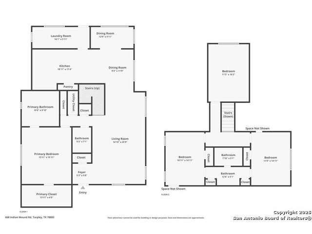
There's Hill Country living. And then there's waking up to your own bend in Hondo Creek, saddling your horse in your five-stall barn, and realizing you'll never want to leave these 10 acres.The water changes everything: Hondo Creek doesn't just border this property-it defines it. Your private dock provides direct access for fishing at sunrise, kayaking through limestone bluffs, or simply cooling off on a July afternoon. This is living water, the kind that draws wildlife at dusk and creates that signature Hill Country sound you can't replicate anywhere else. The main residence is pure Hill Country elegance: Recently remodeled 2,500 square feet with four bedrooms and two-and-a-half baths. The main-level owner's suite is your private refuge-completely reimagined ensuite with freestanding soaking tub, oversized walk-in shower, and creek views that make mornings feel like a reset. Three additional bedrooms upstairs handle guests, family, or weekend overflow with ease. The open-concept heart of the home flows seamlessly-gourmet kitchen with stainless appliances and statement backsplash, into dining, into living-all designed around gathering and that effortless Hill Country entertaining style. And here's the kicker: the home can convey fully furnished with thoughtfully curated pieces that complement the property's rustic sophistication. Turnkey doesn't usually mean this elegant. Outdoor living is the main event: A sprawling pavilion overlooks the creek-outfitted with outdoor kitchen and firepit-where dinner tastes better and conversations last longer. This is where you'll spend most of your time once you realize air conditioning is optional when you have views like this and a breeze coming off the water. For the equestrian or the aspiring one: Five-stall barn with tack room. Round pen for training. Hay barn for storage. And 10+ acres of varied terrain perfect for riding, whether you're seasoned or just getting started. The infrastructure is here; you just bring the horses. The land itself tells the story: Cobblestone bridges connect hand-cut trails that wind through oak mottes and open meadows. Elevated views reveal layers of Hill Country ridgelines. This isn't manicured suburban landscaping-this is authentic Texas terrain that's been thoughtfully enhanced, not overdeveloped. Complete self-sufficiency: Private well and septic system mean you're not beholden to utility schedules or restrictions. Solar-ready if you want to take it further. This property functions independently while remaining easily accessible to Bandera, Utopia, and everything the Hill Country offers. This is the rare trifecta: Legitimate waterfront on a creek that flows. Serious acreage with equestrian infrastructure. A completely remodeled residence that's ready today. Whether you're searching for your Hill Country forever home, a high-end weekend retreat, or an investment property with short-term rental potential in one of Texas' most desirable corridors, this estate delivers what most properties only promise: privacy, water, land, and a lifestyle that feels a world away while being entirely accessible. The creek is calling. The barn is waiting. The only question is whether you're ready to answer.

Map Location

Listing provided courtesy of Michael Schultz of Keller Williams Heritage. Last updated 2025-11-25 12:01:43.000000. Listing information © 2025 LERA MLS.

Michelle Doerr

Texas Licensed Real Estate Broker #0424230
Inquire Now
admin Real estate https://static.royacdn.com/Site-f5d1045a-1c2b-4719-a298-72f1862107a5/team/Michelle_new_photo.jpg realtor # # # https://static.royacdn.com/Site-f5d1045a-1c2b-4719-a298-72f1862107a5/team/Michelle_new_photo.jpg Doerr Realty - Best Realtors in San Antonio, Buy and Sell Your Home in Texas Best realtor in San Antonio TX. We specialize in residential real estate and luxury home sales throughout Texas. Call us to buy or sell your home Doerr Realty https://www.royacdn.com/unsafe/Site-f5d1045a-1c2b-4719-a298-72f1862107a5/MISC/SBP_DoerrRealty_Michelle_Front.jpg @michellesells Doerr Realty Doerr Realty - Best Realtors in San Antonio, Buy and Sell Your Home in Texas Best realtor in San Antonio TX. We specialize in residential real estate and luxury home sales throughout Texas. Call us to buy or sell your home! https://www.royacdn.com/unsafe/Site-f5d1045a-1c2b-4719-a298-72f1862107a5/MISC/SBP_DoerrRealty_Michelle_Front.jpg