Property Detail

14042 Shale Path

San Antonio TX 78253

$329,950

Status: Active

Property Details

Description

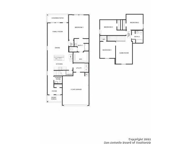
Introducing The Hanna, a two-story home featuring 4 bedrooms, 2.5 baths, and a 2-car garage in Riverstone at Westpointe, a new home community in San Antonio, TX. Here you will find a beautiful open-concept layout with 2042 square feet of functional living space. Your kitchen, dining area and family room blend together seamlessly with plenty of room for everyday living as well as plenty of natural light from the large windows. The gourmet kitchen includes quartz counter tops, stainless steel appliances, shaker style cabinetry and a kitchen island overlooking the living area. The main bedroom suite is downstairs and features quality carpet flooring and an attached bathroom complete with separate water closet, quartz vanity counter top, tiled walk-in shower and a large walk-in closet. The second story includes a full bathroom, a game room, and all secondary bedrooms. Whether these rooms become bedrooms or other bonus spaces, there is sure to be comfort. Additional features of The Hanna floor plan include sheet vinyl flooring in entry, living room, and all wet areas, quartz bathroom counter tops throughout the home, and rear covered patio (per plan) over looking full yard landscaping and irrigation. This home includes our HOME IS CONNECTED base package. Using one central hub that talks to all the devices in your home, you can control the lights, thermostat and locks, all from your cellular device.

Map Location

Listing provided courtesy of R.J. Reyes of Keller Williams Heritage. Last updated 2025-05-18 11:02:05.000000. Listing information © 2025 LERA MLS.

Michelle Doerr

Texas Licensed Real Estate Broker #0424230
Inquire Now
admin Real estate https://static.royacdn.com/Site-f5d1045a-1c2b-4719-a298-72f1862107a5/team/Michelle_new_photo.jpg realtor # # # https://static.royacdn.com/Site-f5d1045a-1c2b-4719-a298-72f1862107a5/team/Michelle_new_photo.jpg Doerr Realty - Best Realtors in San Antonio, Buy and Sell Your Home in Texas Best realtor in San Antonio TX. We specialize in residential real estate and luxury home sales throughout Texas. Call us to buy or sell your home Doerr Realty https://www.royacdn.com/unsafe/Site-f5d1045a-1c2b-4719-a298-72f1862107a5/MISC/SBP_DoerrRealty_Michelle_Front.jpg @michellesells Doerr Realty Doerr Realty - Best Realtors in San Antonio, Buy and Sell Your Home in Texas Best realtor in San Antonio TX. We specialize in residential real estate and luxury home sales throughout Texas. Call us to buy or sell your home! https://www.royacdn.com/unsafe/Site-f5d1045a-1c2b-4719-a298-72f1862107a5/MISC/SBP_DoerrRealty_Michelle_Front.jpg