Property Detail

211 Macaw Ln

Spring Branch TX 78070

$1,050,000

Status: Active

Property Details

Description

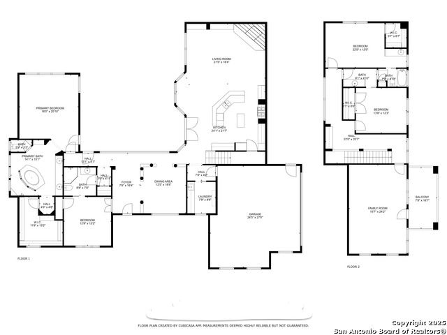
Exquisite "Texas Tuscan" Masterpiece in Mystic Shores at Canyon Lake Spring Branch, TX | 3,744 Sq Ft | 1.38 Acre Corner Lot | 4 Bed | 3 Bath | 4-Car Garage | Pool & Spa Step into Hill Country elegance with this stunning Mediterranean-style home, a former model built by renowned Travis Mitchell and Millennium Homes. Nestled on a sprawling 1.38-acre corner lot in the sought-after community of Mystic Shores, this luxury retreat is framed by majestic mature oak trees, offering privacy, breathtaking curb appeal, and timeless craftsmanship. Inside, you'll find 4 spacious bedrooms, 3 full baths, and thoughtfully designed living spaces with high-end finishes throughout. The main level features Travertine stone floors, a grand stone fireplace in the living room, and a gourmet kitchen with built-in gas stove and stone surround, large island, walk-in pantry, and premium appliances (all less than 5 years old). The primary suite is a serene escape, complete with a walk-in closet, jetted whirlpool tub, triple walk-through shower, and double vanities. A secondary main-level room with a custom stone accent wall and en suite bath offers flexible space as a guest room or office. A dramatic glass wall at the entry draws your eye to the outdoor oasis-heated pool with spa, covered patio with tongue-and-groove ceiling and full outdoor kitchen, plus a sunset-facing pergola perfect for evening relaxation. Upstairs, a loft with built-in cabinetry opens to a large game/media room with balcony where you can relax and watch the sunset. Two additional spacious bedrooms share a Jack-and-Jill bath with separate vanities. Additional highlights include: Oversized 2-car attached garage + 2-car detached garage Massive circular aggregate concrete driveway Custom iron stair railing Large laundry room with sink and built-ins Recent HVAC systems (under 3 years old) and water heater (under 2 years) Sprinkler system, alarm system, and landscape lighting. Located in the amenity-rich community of Mystic Shores at Canyon Lake, enjoy access to 2 pools, lakeside parks, tennis, pickleball, volleyball, and basketball courts, a nature preserve with hiking trails, a clubhouse with gym and rental spaces, and a nearby boat ramp for all your lake adventures. This is Hill Country living at its finest-luxury, comfort, and natural beauty all in one.

Map Location

Listing provided courtesy of Jennifer Meier of Keller Williams Heritage. Last updated 2025-12-02 12:01:41.000000. Listing information © 2025 LERA MLS.

Michelle Doerr

Texas Licensed Real Estate Broker #0424230
Inquire Now
admin Real estate https://static.royacdn.com/Site-f5d1045a-1c2b-4719-a298-72f1862107a5/team/Michelle_new_photo.jpg realtor # # # https://static.royacdn.com/Site-f5d1045a-1c2b-4719-a298-72f1862107a5/team/Michelle_new_photo.jpg Doerr Realty - Best Realtors in San Antonio, Buy and Sell Your Home in Texas Best realtor in San Antonio TX. We specialize in residential real estate and luxury home sales throughout Texas. Call us to buy or sell your home Doerr Realty https://www.royacdn.com/unsafe/Site-f5d1045a-1c2b-4719-a298-72f1862107a5/MISC/SBP_DoerrRealty_Michelle_Front.jpg @michellesells Doerr Realty Doerr Realty - Best Realtors in San Antonio, Buy and Sell Your Home in Texas Best realtor in San Antonio TX. We specialize in residential real estate and luxury home sales throughout Texas. Call us to buy or sell your home! https://www.royacdn.com/unsafe/Site-f5d1045a-1c2b-4719-a298-72f1862107a5/MISC/SBP_DoerrRealty_Michelle_Front.jpg