Property Detail

4277 Carlotta Drive

New Braunfels TX 78130

$284,990

Status: Active

Property Details

Description

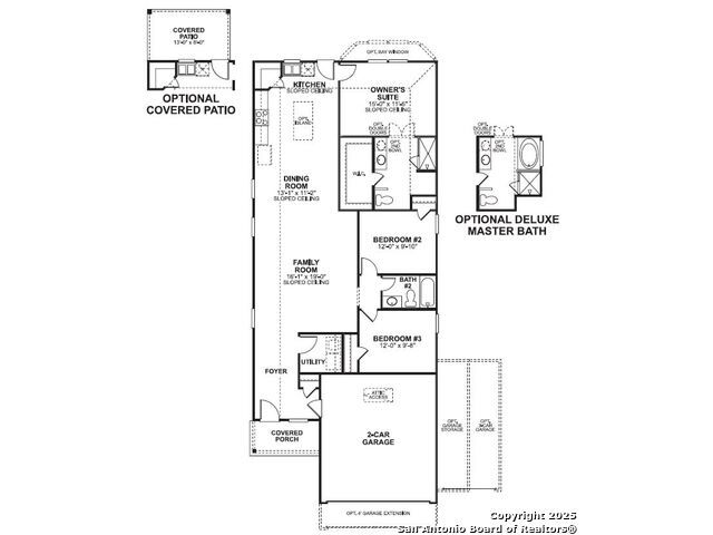
***READY NOW*** New 3-Bedroom Home for Sale in New Braunfels, Texas **Discover this stunning new construction home at 4277 Carlotta Drive in New Braunfels, featuring quality design and thoughtful details throughout.** This beautiful single-story home offers 1,556 square feet of comfortable living space with an open-concept design that seamlessly connects the main living areas. Built by M/I Homes, this new construction home showcases excellent craftsmanship and attention to detail. **Key Features:** * 3 bedrooms, including a convenient owner's bedroom located on the main floor * 2 full bathrooms with quality fixtures and finishes * Open-concept living space perfect for entertaining and daily life * 1,556 square feet of well-designed living area * Single-story floorplan for easy accessibility The owner's bedroom provides a private retreat with an en-suite bathroom, while the additional bedrooms offer flexibility for family, guests, or home office space. The open-concept design creates a spacious feel throughout the main living areas, allowing natural light to flow freely. Located in a desirable New Braunfels neighborhood, this home offers proximity to local parks and recreational opportunities. The area provides easy access to outdoor activities and community amenities that enhance the living experience. This new construction home represents an excellent opportunity to own a quality-built residence in one of Texas's most sought-after communities. The thoughtful floorplan and quality design elements create a welcoming environment for comfortable living. **Experience the benefits of new construction with modern conveniences and energy-efficient features in this exceptional New Braunfels home.**

Map Location

Listing provided courtesy of Jaclyn Calhoun of Escape Realty. Last updated 2025-11-19 12:02:02.000000. Listing information © 2025 LERA MLS.

Michelle Doerr

Texas Licensed Real Estate Broker #0424230
Inquire Now
admin Real estate https://static.royacdn.com/Site-f5d1045a-1c2b-4719-a298-72f1862107a5/team/Michelle_new_photo.jpg realtor # # # https://static.royacdn.com/Site-f5d1045a-1c2b-4719-a298-72f1862107a5/team/Michelle_new_photo.jpg Doerr Realty - Best Realtors in San Antonio, Buy and Sell Your Home in Texas Best realtor in San Antonio TX. We specialize in residential real estate and luxury home sales throughout Texas. Call us to buy or sell your home Doerr Realty https://www.royacdn.com/unsafe/Site-f5d1045a-1c2b-4719-a298-72f1862107a5/MISC/SBP_DoerrRealty_Michelle_Front.jpg @michellesells Doerr Realty Doerr Realty - Best Realtors in San Antonio, Buy and Sell Your Home in Texas Best realtor in San Antonio TX. We specialize in residential real estate and luxury home sales throughout Texas. Call us to buy or sell your home! https://www.royacdn.com/unsafe/Site-f5d1045a-1c2b-4719-a298-72f1862107a5/MISC/SBP_DoerrRealty_Michelle_Front.jpg