Property Detail

2630 ROCKY RIDGE LOOP

Canyon Lake TX 78133

$329,000

Status: Active

Property Details

Description

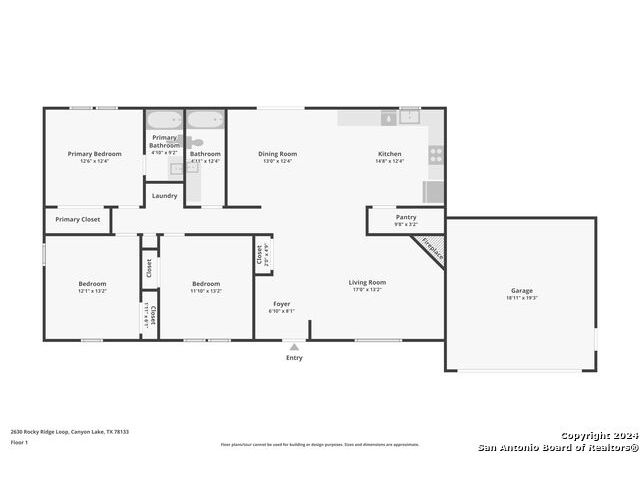
Welcome to your Hill Country retreat in the sought-after Rocky Creek Ranch community. Situated on a gated and fully fenced .52-acre lot, this updated 3-bedroom, 2-bathroom home offers privacy, charm, and room to park your boat or RV. The open floor plan features a cozy rock fireplace, no carpet, and recent upgrades including a remodeled pantry, new dishwasher, updated lighting, and fixtures throughout. Enjoy sunsets from the covered front porch or explore the community amenities including a pool, clubhouse, and playground. With a newer roof, private septic system, extra parking, and thoughtful drainage improvements, this home is move-in ready and built for easy living. Located just minutes from Canyon Lake, shopping, and dining-with no city taxes and highly rated Comal ISD schools-this home offers the ideal balance of nature and convenience. Just 30 mins to New Braunfels or SA!

Map Location

Listing provided courtesy of Tiffany Stevens of Forward Real Estate. Last updated 2025-10-26 11:01:38.000000. Listing information © 2025 LERA MLS.

Michelle Doerr

Texas Licensed Real Estate Broker #0424230
Inquire Now
admin Real estate https://static.royacdn.com/Site-f5d1045a-1c2b-4719-a298-72f1862107a5/team/Michelle_new_photo.jpg realtor # # # https://static.royacdn.com/Site-f5d1045a-1c2b-4719-a298-72f1862107a5/team/Michelle_new_photo.jpg Doerr Realty - Best Realtors in San Antonio, Buy and Sell Your Home in Texas Best realtor in San Antonio TX. We specialize in residential real estate and luxury home sales throughout Texas. Call us to buy or sell your home Doerr Realty https://www.royacdn.com/unsafe/Site-f5d1045a-1c2b-4719-a298-72f1862107a5/MISC/SBP_DoerrRealty_Michelle_Front.jpg @michellesells Doerr Realty Doerr Realty - Best Realtors in San Antonio, Buy and Sell Your Home in Texas Best realtor in San Antonio TX. We specialize in residential real estate and luxury home sales throughout Texas. Call us to buy or sell your home! https://www.royacdn.com/unsafe/Site-f5d1045a-1c2b-4719-a298-72f1862107a5/MISC/SBP_DoerrRealty_Michelle_Front.jpg