Property Detail

21136 Gravel Keep

San Antonio TX 78266

$368,950

Status: Active

Property Details

Description

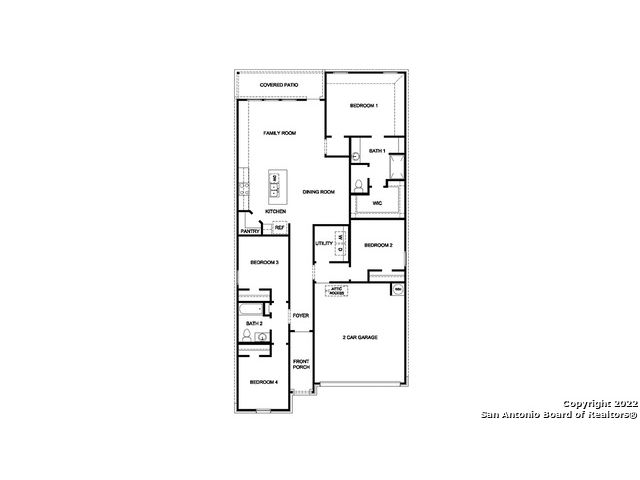
The Easton plan located at beautiful Brookstone Creek in San Antonio, TX offers a perfect balance of style, comfort, and functionality within a spacious 1680 square foot, single-story layout. Featuring 4 bedrooms and two full bathrooms, this home is designed with you and your loved ones in mind. A welcoming elongated foyer guides you into the heart of the home, where an open-concept kitchen, dining area and living room create a bright, airy space ideal for gatherings and everyday life. The kitchen stands out with stainless steel appliances, a gas cooking range, quartz countertops, a spacious kitchen island and a farmhouse style sink. Stylish flat panel cabinetry and classic white subway tile backsplash complete the modern look in this home. The primary bedroom suite, privately located at the rear of the home, offers a relaxing retreat with a walk-in shower, dual vanity sinks and a massive walk-in closet. At the front of the home, the secondary bedrooms provide privacy and flexibility - perfect for children, guests or home offices. Each features quality carpet flooring, large windows and ample closet space for comfort and convenience. This home includes our HOME IS CONNECTED base package. Using one central hub that talks to all the devices in your home, you can control the lights, thermostat and locks, all from your cellular device. Additional highlights of The Easton include vinyl plan flooring throughout the main living areas, a covered patio (per plan), full yard landscaping with irrigation and a pre-plumbed water softener loop. The Easton brings practical elegance to life in Brookstone Creek! We're ready to welcome you home!

Map Location

Listing provided courtesy of R.J. Reyes of Keller Williams Heritage. Last updated 2025-11-18 12:02:00.000000. Listing information © 2025 LERA MLS.

Michelle Doerr

Texas Licensed Real Estate Broker #0424230
Inquire Now
admin Real estate https://static.royacdn.com/Site-f5d1045a-1c2b-4719-a298-72f1862107a5/team/Michelle_new_photo.jpg realtor # # # https://static.royacdn.com/Site-f5d1045a-1c2b-4719-a298-72f1862107a5/team/Michelle_new_photo.jpg Doerr Realty - Best Realtors in San Antonio, Buy and Sell Your Home in Texas Best realtor in San Antonio TX. We specialize in residential real estate and luxury home sales throughout Texas. Call us to buy or sell your home Doerr Realty https://www.royacdn.com/unsafe/Site-f5d1045a-1c2b-4719-a298-72f1862107a5/MISC/SBP_DoerrRealty_Michelle_Front.jpg @michellesells Doerr Realty Doerr Realty - Best Realtors in San Antonio, Buy and Sell Your Home in Texas Best realtor in San Antonio TX. We specialize in residential real estate and luxury home sales throughout Texas. Call us to buy or sell your home! https://www.royacdn.com/unsafe/Site-f5d1045a-1c2b-4719-a298-72f1862107a5/MISC/SBP_DoerrRealty_Michelle_Front.jpg