Property Detail

6592 Cooksey

Adkins TX 78101

$550,000

Status: Active

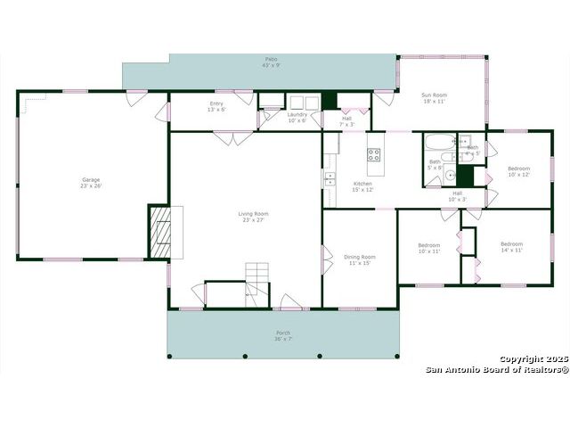
Property Details

Description

Endless Potential on 13 Acres - Ideal for 4H Projects, Horses, or Livestock!! If you've been searching for wide open space and a chance to make a home your own, this 13-acre property is ready for your vision. Perfectly suited for 4H projects, horses, cows, or hobby farming ~ working cattle pens ~ the land offers a rare opportunity to enjoy rural living just the way you want it. The original home, built in 1966 with an addition in 1986, features dual master bedrooms upstairs, a spacious family room with a wood-burning fireplace, and plenty of square footage to work with. The kitchen, bedrooms, and bathrooms are all original, providing a solid canvas for your custom updates and modern touches. Whether you're looking to build your dream homestead, raise animals, or simply enjoy the peace of country living, this property offers the space and flexibility to do it all. Home is being sold as-is with NEW ROOF 6/2025 but needs work-bring your tools and imagination to unlock its full potential! Private water well & RV slab are a few more touches to this property.

Map Location

Listing provided courtesy of Stephanie Rodgers of RE/MAX Corridor. Last updated 2025-12-09 12:01:46.000000. Listing information © 2025 LERA MLS.

Michelle Doerr

Texas Licensed Real Estate Broker #0424230
Inquire Now
admin Real estate https://static.royacdn.com/Site-f5d1045a-1c2b-4719-a298-72f1862107a5/team/Michelle_new_photo.jpg realtor # # # https://static.royacdn.com/Site-f5d1045a-1c2b-4719-a298-72f1862107a5/team/Michelle_new_photo.jpg Doerr Realty - Best Realtors in San Antonio, Buy and Sell Your Home in Texas Best realtor in San Antonio TX. We specialize in residential real estate and luxury home sales throughout Texas. Call us to buy or sell your home Doerr Realty https://www.royacdn.com/unsafe/Site-f5d1045a-1c2b-4719-a298-72f1862107a5/MISC/SBP_DoerrRealty_Michelle_Front.jpg @michellesells Doerr Realty Doerr Realty - Best Realtors in San Antonio, Buy and Sell Your Home in Texas Best realtor in San Antonio TX. We specialize in residential real estate and luxury home sales throughout Texas. Call us to buy or sell your home! https://www.royacdn.com/unsafe/Site-f5d1045a-1c2b-4719-a298-72f1862107a5/MISC/SBP_DoerrRealty_Michelle_Front.jpg