Property Detail

2919 Colleen

Canyon Lake TX 78133

$650,000

Status: Active

Property Details

Description

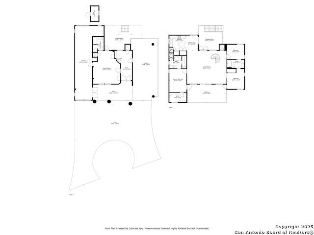
Experience lake living at its finest in this beautifully updated Canyon Lake retreat, just steps from Boat Ramp 2 in the highly desirable Canyon Lake Village West community. This home is steel constructed and designed to showcase its incredible lake views with an elevated reverse floor plan that maximizes the scenery from the main living areas and upstairs bedrooms. The property can be enjoyed as a full time residence or a short term rental investment. Step out onto the expansive front balcony and take in the panoramic blues of Canyon Lake, perfect for morning coffee or sunset gatherings. The back balcony offers a peaceful setting overlooking a fully fenced yard. Inside, you'll find an inviting open concept layout featuring a bright and airy living, dining, and kitchen space with soaring ceilings and abundant natural light. The primary suite opens directly onto the front balcony and includes a spacious walk in closet, dual storage options, and a private ensuite bath. Two additional bedrooms are connected by a Jack and Jill bath, with one also offering balcony access. Downstairs, a private elevator takes you to a flexible fourth bedroom or secondary living area. The space is complete with its own bathroom, a coffee bar, and direct outdoor access. Additional highlights include a newer roof, updated flooring downstairs, and full community amenities including a pool, tennis courts, park, and a clubhouse. Whether you're looking for a serene getaway, an Airbnb investment, or a full time residence, this home offers it all. Just minutes from Whitewater Amphitheater, the Guadalupe River, and the charming towns of New Braunfels, Wimberley, and San Antonio.

Map Location

Listing provided courtesy of Inaky Strick of Kuper Sotheby's Int'l Realty. Last updated 2025-07-31 11:02:01.000000. Listing information © 2025 LERA MLS.

Michelle Doerr

Texas Licensed Real Estate Broker #0424230
Inquire Now
admin Real estate https://static.royacdn.com/Site-f5d1045a-1c2b-4719-a298-72f1862107a5/team/Michelle_new_photo.jpg realtor # # # https://static.royacdn.com/Site-f5d1045a-1c2b-4719-a298-72f1862107a5/team/Michelle_new_photo.jpg Doerr Realty - Best Realtors in San Antonio, Buy and Sell Your Home in Texas Best realtor in San Antonio TX. We specialize in residential real estate and luxury home sales throughout Texas. Call us to buy or sell your home Doerr Realty https://www.royacdn.com/unsafe/Site-f5d1045a-1c2b-4719-a298-72f1862107a5/MISC/SBP_DoerrRealty_Michelle_Front.jpg @michellesells Doerr Realty Doerr Realty - Best Realtors in San Antonio, Buy and Sell Your Home in Texas Best realtor in San Antonio TX. We specialize in residential real estate and luxury home sales throughout Texas. Call us to buy or sell your home! https://www.royacdn.com/unsafe/Site-f5d1045a-1c2b-4719-a298-72f1862107a5/MISC/SBP_DoerrRealty_Michelle_Front.jpg