Property Detail

265 DENALI DRIVE

Kyle TX 78640

$366,990

Status: Active

Property Details

Description

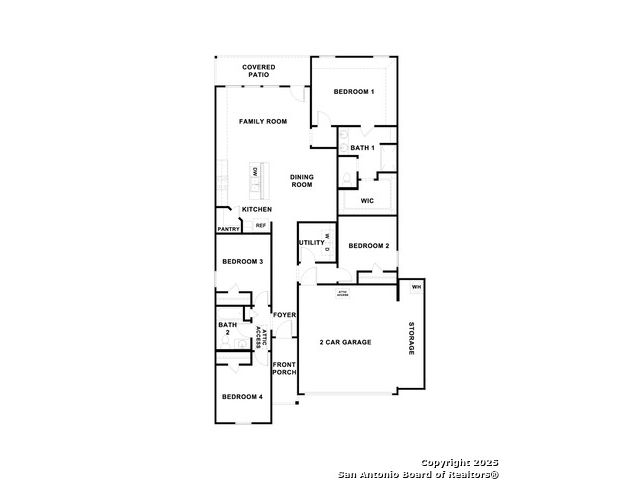
JANUARY ESTIMATED COMPLETION. Find all the space you need in our Easton floorplan at Paramount in Kyle, Texas. This one-story home is perfect for any family, thoughtfully designed with 4 bedrooms, 2 bathrooms, 2 car garage across 1,672 square feet. Our homes in Paramount feature our modern farmhouse exteriors. Walk through the covered entryway and make your way down the hall to the main living space. The kitchen, dining and family room are open, built to make cooking, eating, and entertaining a pleasant experience for family and friends. The L-shaped kitchen includes quartz countertops, a large island with undermount sink, stainless-steel appliances, 36' upper cabinets, and a corner pantry closet. Enjoy the natural light with three rear windows looking out to the backyard. Off the family room is the primary bedroom, with its own attached bathroom. This relaxing bathroom space features a walk-in shower, marble countertops with dual vanity, separate toilet area with a door, and a walk-in closet. Stretch out and relax at the end of your day in this spacious and private ensuite. At the front of the house, you will find bedroom 3 and 4, with the secondary bathroom conveniently located between the rooms. Bathroom 2 includes a shower/tub combination. Across the foyer and down a short hall is the utility room and bedroom 2. Whether you use these rooms as an office, child's room or guest room, there is enough space for work, sleep and play. The Easton includes vinyl flooring throughout the common areas of the home and carpet in the bedrooms. All our new homes at Paramount feature extra storage space in the garage, a covered back patio, full sod, and an irrigation system in the front and back yard. This home comes with our America's Smart Home base package, which includes Video Front Door Bell, Front Door Deadbolt Lock, Home Hub, Thermostat, and Deako Smart Switches.

Map Location

Listing provided courtesy of Dave Clinton of D.R. Horton, AMERICA'S Builder. Last updated 2025-11-15 12:01:57.000000. Listing information © 2025 LERA MLS.

Michelle Doerr

Texas Licensed Real Estate Broker #0424230
Inquire Now
admin Real estate https://static.royacdn.com/Site-f5d1045a-1c2b-4719-a298-72f1862107a5/team/Michelle_new_photo.jpg realtor # # # https://static.royacdn.com/Site-f5d1045a-1c2b-4719-a298-72f1862107a5/team/Michelle_new_photo.jpg Doerr Realty - Best Realtors in San Antonio, Buy and Sell Your Home in Texas Best realtor in San Antonio TX. We specialize in residential real estate and luxury home sales throughout Texas. Call us to buy or sell your home Doerr Realty https://www.royacdn.com/unsafe/Site-f5d1045a-1c2b-4719-a298-72f1862107a5/MISC/SBP_DoerrRealty_Michelle_Front.jpg @michellesells Doerr Realty Doerr Realty - Best Realtors in San Antonio, Buy and Sell Your Home in Texas Best realtor in San Antonio TX. We specialize in residential real estate and luxury home sales throughout Texas. Call us to buy or sell your home! https://www.royacdn.com/unsafe/Site-f5d1045a-1c2b-4719-a298-72f1862107a5/MISC/SBP_DoerrRealty_Michelle_Front.jpg