Property Detail

2049 Zephyr Lily

San Antonio TX 78221

$160,999

Status: Active

Property Details

Description

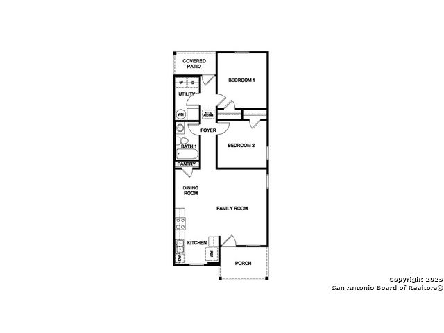
The Blake, a new construction home in the sought-after Sonora community in San Antonio, TX, offers 816 square feet of well-designed living space. This charming home features 2 bedrooms and 1 bathroom, perfect for those seeking a cozy yet functional layout. The Blake provides two all-siding exterior options, both constructed with durable James Hardie products, ensuring long-lasting beauty and low maintenance. Instead of a traditional garage, the home features a spacious driveway, offering convenient parking space. The open concept layout of the home creates a seamless flow between the living room, dining area, and kitchen, making it ideal for everyday living and entertaining. The kitchen is equipped with stunning quartz countertops, stainless steel appliances, and shaker-style cabinets, providing a modern and efficient space for cooking and socializing. The main bedroom offers a comfortable retreat with quality carpet flooring, while the second bedroom provides additional space for guests or a home office. The bathroom features a single vanity with a quartz countertop and a combined shower and bathtub, providing both functionality and a touch of luxury. Additional features of the Blake include hard surface flooring in the living room, kitchen, and all wet areas for easy maintenance. Patios are also included per plan, adding extra outdoor space. With its thoughtful design and quality craftsmanship, The Blake is the perfect choice for anyone looking for a modern, low-maintenance home in San Antonio, TX.

Map Location

Listing provided courtesy of R.J. Reyes of Keller Williams Heritage. Last updated 2025-11-01 11:01:57.000000. Listing information © 2025 LERA MLS.

Michelle Doerr

Texas Licensed Real Estate Broker #0424230
Inquire Now
admin Real estate https://static.royacdn.com/Site-f5d1045a-1c2b-4719-a298-72f1862107a5/team/Michelle_new_photo.jpg realtor # # # https://static.royacdn.com/Site-f5d1045a-1c2b-4719-a298-72f1862107a5/team/Michelle_new_photo.jpg Doerr Realty - Best Realtors in San Antonio, Buy and Sell Your Home in Texas Best realtor in San Antonio TX. We specialize in residential real estate and luxury home sales throughout Texas. Call us to buy or sell your home Doerr Realty https://www.royacdn.com/unsafe/Site-f5d1045a-1c2b-4719-a298-72f1862107a5/MISC/SBP_DoerrRealty_Michelle_Front.jpg @michellesells Doerr Realty Doerr Realty - Best Realtors in San Antonio, Buy and Sell Your Home in Texas Best realtor in San Antonio TX. We specialize in residential real estate and luxury home sales throughout Texas. Call us to buy or sell your home! https://www.royacdn.com/unsafe/Site-f5d1045a-1c2b-4719-a298-72f1862107a5/MISC/SBP_DoerrRealty_Michelle_Front.jpg