Property Detail

154 Double L Drive

Comfort TX 78013

$349,950

Status: Active

Property Details

Description

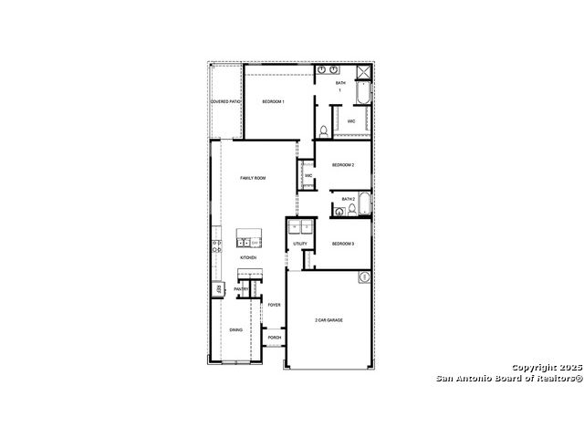
Step into The Brown floor plan at High Garden in Comfort, TX, a single-story home featuring 3 bedrooms and 2 bathrooms. The Brown also offers 3 classic front exteriors, a 2-car garage and 1651 square feet of comfortable living. The Brown features classic design and modern features that blend seamlessly to create the perfect everyday space. A welcoming foyer leads to a formal dining room with large windows and a connecting doorway to the galley kitchen. The kitchen includes plenty of cabinet storage, quartz counter tops, subway tile backsplash, stainless steel appliances, and a electric cooking range. A large kitchen island with a deep, single basin sink overlooks the spacious living room. The large first bedroom suite is located off the family room and features a double vanity sink, separate tub and walk-in shower and a private water closet. You'll have all the space you need to get ready in the morning with a large walk-in closet. Spacious secondary bedrooms with large closets and quality carpet flooring, a second full bathroom with plenty of natural light, and a utility room are conveniently located off the living room. Additional features of The Brown include tall 9-foot ceilings, 2-inch faux wood blinds throughout the home, luxury vinyl plank flooring in the entry, family room, kitchen, and dining area, ceramic tile in the bathrooms and utility room, and pre-plumb for water softener loop. You'll enjoy added security in your new home with our Home is Connected features. Using one central hub that talks to all the devices in your home, you can control the lights, thermostat and locks, all from your cellular device.

Map Location

Listing provided courtesy of R.J. Reyes of Keller Williams Heritage. Last updated 2025-11-17 12:01:49.000000. Listing information © 2025 LERA MLS.

Michelle Doerr

Texas Licensed Real Estate Broker #0424230
Inquire Now
admin Real estate https://static.royacdn.com/Site-f5d1045a-1c2b-4719-a298-72f1862107a5/team/Michelle_new_photo.jpg realtor # # # https://static.royacdn.com/Site-f5d1045a-1c2b-4719-a298-72f1862107a5/team/Michelle_new_photo.jpg Doerr Realty - Best Realtors in San Antonio, Buy and Sell Your Home in Texas Best realtor in San Antonio TX. We specialize in residential real estate and luxury home sales throughout Texas. Call us to buy or sell your home Doerr Realty https://www.royacdn.com/unsafe/Site-f5d1045a-1c2b-4719-a298-72f1862107a5/MISC/SBP_DoerrRealty_Michelle_Front.jpg @michellesells Doerr Realty Doerr Realty - Best Realtors in San Antonio, Buy and Sell Your Home in Texas Best realtor in San Antonio TX. We specialize in residential real estate and luxury home sales throughout Texas. Call us to buy or sell your home! https://www.royacdn.com/unsafe/Site-f5d1045a-1c2b-4719-a298-72f1862107a5/MISC/SBP_DoerrRealty_Michelle_Front.jpg