Property Detail

140 Red Canyons

Cibolo TX 78108

$320,000

Status: Active

Property Details

Description

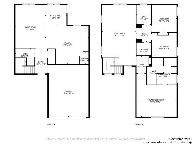
Welcome to this beautiful two-story home, built in 2023, offering modern comforts and a thoughtful layout in the heart of Cibolo. Served by the highly-regarded Schertz-Cibolo-Universal City ISD, this home's inviting brick and wood exterior leads into a bright and open-concept main floor, where a spacious living and dining area flows seamlessly into the stylish island kitchen, complete with a walk-in pantry, breakfast bar, and ample counter space. Upstairs, a versatile loft provides the perfect second living area or game room. The private primary suite is a peaceful retreat, featuring a large walk-in closet and an en-suite bathroom with a double vanity and a separate tub and shower. Two additional bedrooms and a dedicated laundry room complete the well-designed upper level. Step outside to the covered patio, which overlooks a generous backyard enclosed by a privacy fence and maintained by a full sprinkler system. Notable upgrades include recently installed ceiling fans (2025), a newly added lighted path in the backyard (2025), and an owned water softener system. This friendly community enhances your lifestyle with jogging trails, a park and playground, and festive neighborhood events. This is where your next chapter begins!

Map Location

Listing provided courtesy of Ana Warmke of Keller Williams Heritage. Last updated 2025-12-09 12:01:41.000000. Listing information © 2025 LERA MLS.

Michelle Doerr

Texas Licensed Real Estate Broker #0424230
Inquire Now
admin Real estate https://static.royacdn.com/Site-f5d1045a-1c2b-4719-a298-72f1862107a5/team/Michelle_new_photo.jpg realtor # # # https://static.royacdn.com/Site-f5d1045a-1c2b-4719-a298-72f1862107a5/team/Michelle_new_photo.jpg Doerr Realty - Best Realtors in San Antonio, Buy and Sell Your Home in Texas Best realtor in San Antonio TX. We specialize in residential real estate and luxury home sales throughout Texas. Call us to buy or sell your home Doerr Realty https://www.royacdn.com/unsafe/Site-f5d1045a-1c2b-4719-a298-72f1862107a5/MISC/SBP_DoerrRealty_Michelle_Front.jpg @michellesells Doerr Realty Doerr Realty - Best Realtors in San Antonio, Buy and Sell Your Home in Texas Best realtor in San Antonio TX. We specialize in residential real estate and luxury home sales throughout Texas. Call us to buy or sell your home! https://www.royacdn.com/unsafe/Site-f5d1045a-1c2b-4719-a298-72f1862107a5/MISC/SBP_DoerrRealty_Michelle_Front.jpg