Property Detail

8328 Roadrunner Passage

San Antonio TX 78222

$329,990

Status: Active

Property Details

Description

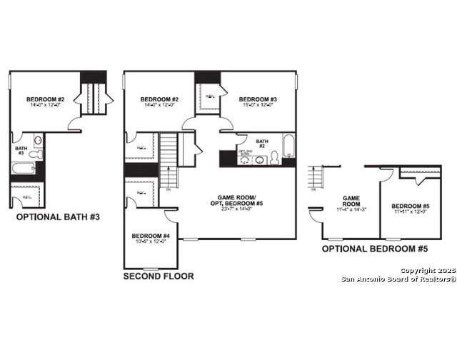
**ESTIMATED COMPLETION DATE DECEMBER 2025** New 5-Bedroom Home for Sale in San Antonio, Texas Discover exceptional new construction at 8328 Roadrunner Passage, built by M/I Homes. This impressive 5-bedroom, 2-bathroom home offers 2,559 square feet of thoughtfully designed living space with the owner's bedroom conveniently located on the main level. **Key Features:** * Spacious 5-bedroom floorplan with owner's bedroom downstairs * 2 full bathrooms throughout the home * Open-concept living space perfect for entertaining * 2,559 square feet of comfortable living area * New construction with quality craftsmanship by M/I Homes This well-appointed home showcases excellent design quality with attention to detail throughout every room. The open-concept living area creates seamless flow between spaces, ideal for both daily living and hosting guests. With 5 generously sized bedrooms, this home provides ample space for families of all sizes. The owner's bedroom positioned on the main level offers convenient single-story living, while additional bedrooms provide flexibility for family members, guests, or home office space. The 2 bathrooms are strategically placed to serve the home's layout efficiently. Located in a desirable San Antonio neighborhood, this home sits in close proximity to beautiful parks, offering residents easy access to outdoor recreation and green spaces. The surrounding area provides a peaceful residential setting while maintaining convenient access to city amenities. Built with modern construction standards, this M/I Homes creation represents quality building practices and contemporary design elements. The home's thoughtful floorplan maximizes the 2,559 square feet to create comfortable, functional living spaces throughout.

Map Location

Listing provided courtesy of Jaclyn Calhoun of Escape Realty. Last updated 2025-12-02 12:01:50.000000. Listing information © 2025 LERA MLS.

Michelle Doerr

Texas Licensed Real Estate Broker #0424230
Inquire Now
admin Real estate https://static.royacdn.com/Site-f5d1045a-1c2b-4719-a298-72f1862107a5/team/Michelle_new_photo.jpg realtor # # # https://static.royacdn.com/Site-f5d1045a-1c2b-4719-a298-72f1862107a5/team/Michelle_new_photo.jpg Doerr Realty - Best Realtors in San Antonio, Buy and Sell Your Home in Texas Best realtor in San Antonio TX. We specialize in residential real estate and luxury home sales throughout Texas. Call us to buy or sell your home Doerr Realty https://www.royacdn.com/unsafe/Site-f5d1045a-1c2b-4719-a298-72f1862107a5/MISC/SBP_DoerrRealty_Michelle_Front.jpg @michellesells Doerr Realty Doerr Realty - Best Realtors in San Antonio, Buy and Sell Your Home in Texas Best realtor in San Antonio TX. We specialize in residential real estate and luxury home sales throughout Texas. Call us to buy or sell your home! https://www.royacdn.com/unsafe/Site-f5d1045a-1c2b-4719-a298-72f1862107a5/MISC/SBP_DoerrRealty_Michelle_Front.jpg