Property Detail

15431 Salmon Spring

San Antonio TX 78245

$299,990

Status: Active

Property Details

Description

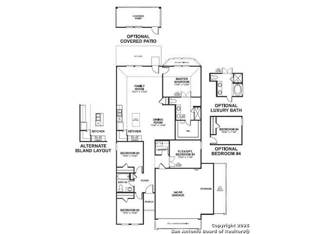
***ESTIMATED COMPLETION DATE DECEMBER 2025*** Discover this stunning new construction home located at 15431 Salmon Spring in San Antonio. Built by M/I Homes, this thoughtfully designed 3-bedroom, 2-bathroom home offers 1,687 square feet of comfortable living space with an open-concept design perfect for daily life and entertaining. This well-appointed home features: 3 spacious bedrooms with the owner's bedroom conveniently located on the main floor2 full bathrooms designed for functionality and styleOpen-concept living space that seamlessly connects the main areasQuality construction and design details throughout1,687 square feet of thoughtfully planned living spaceThe neighborhood offers an excellent location with convenient proximity to parks, making it ideal for outdoor recreation and family activities. The area provides easy access to local amenities while maintaining a peaceful residential atmosphere. As a new construction home by M/I Homes, this residence showcases quality craftsmanship and contemporary design elements. The open-concept floorplan creates a natural flow between living areas, while the owner's bedroom on the main level adds convenience to daily routines. This home combines the benefits of new construction with a desirable location, offering move-in ready comfort in a well-established San Antonio neighborhood. The thoughtful design and quality construction make this an excellent opportunity for homebuyers seeking a contemporary living experience.

Map Location

Listing provided courtesy of Jaclyn Calhoun of Escape Realty. Last updated 2025-11-26 12:01:46.000000. Listing information © 2025 LERA MLS.

Michelle Doerr

Texas Licensed Real Estate Broker #0424230
Inquire Now
admin Real estate https://static.royacdn.com/Site-f5d1045a-1c2b-4719-a298-72f1862107a5/team/Michelle_new_photo.jpg realtor # # # https://static.royacdn.com/Site-f5d1045a-1c2b-4719-a298-72f1862107a5/team/Michelle_new_photo.jpg Doerr Realty - Best Realtors in San Antonio, Buy and Sell Your Home in Texas Best realtor in San Antonio TX. We specialize in residential real estate and luxury home sales throughout Texas. Call us to buy or sell your home Doerr Realty https://www.royacdn.com/unsafe/Site-f5d1045a-1c2b-4719-a298-72f1862107a5/MISC/SBP_DoerrRealty_Michelle_Front.jpg @michellesells Doerr Realty Doerr Realty - Best Realtors in San Antonio, Buy and Sell Your Home in Texas Best realtor in San Antonio TX. We specialize in residential real estate and luxury home sales throughout Texas. Call us to buy or sell your home! https://www.royacdn.com/unsafe/Site-f5d1045a-1c2b-4719-a298-72f1862107a5/MISC/SBP_DoerrRealty_Michelle_Front.jpg