Property Detail

25802 Hazy Hollow

San Antonio TX 78255

$1,400,000

Status: Active

Property Details

Description

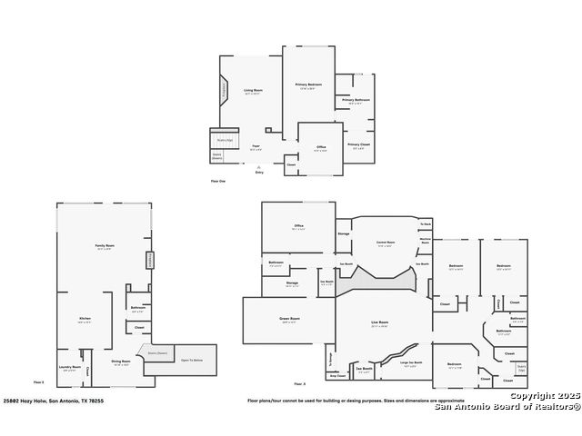
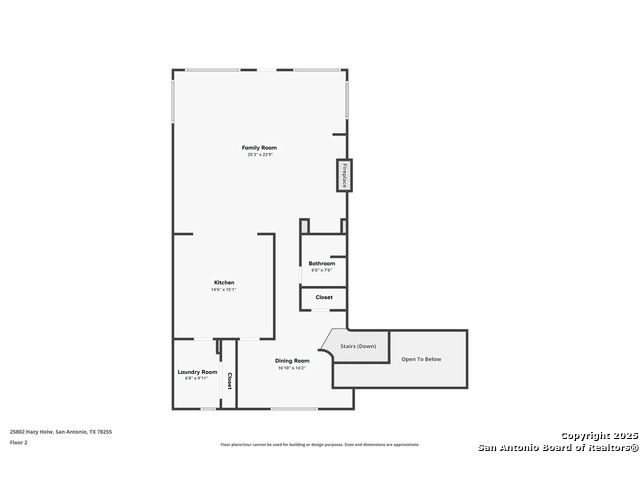
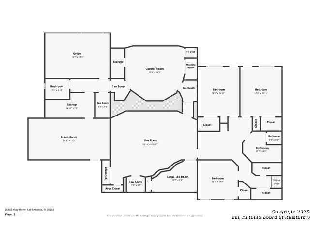
Step inside one of San Antonio's most distinctive properties - a musician's dream and private retreat all in one. Originally featured in Mix Magazine's Class of 2002, this acoustically engineered recording studio was designed by renowned acoustician Jack Piercy with audio installation by RB Blackstone of Sound Madness. Built to exacting professional standards, the 2,270 sq ft facility includes a 500 sq ft Live End Dead End (LEDE) live room, 290 sq ft control room with a vintage Neve console, 2" tape recording, and a Pro Tools Ultimate HDX setup (32 channels in and 32 channels out). Five isolation booths, a green room lounge, dedicated office, half bath, and ample storage make this a fully turnkey studio - ready for tracking, mixing, and mastering. Expert soundproofing and studio-grade construction greatly reduce sound transfer, allowing both creative flow and household peace to coexist. Beyond a discreet private entrance lies the 3,576 sq ft custom residence - seamlessly connected yet completely separate in feel. The home offers four spacious bedrooms, two and a half baths, and a private office overlooking 1.77 wooded acres in a gated, guarded community. Inside, the formal living room makes a bold statement with its floor-to-ceiling brick fireplace and double sliding glass doors leading to the main deck and sparkling pool. Upstairs, the modern kitchen glows beneath a central skylight and opens to an expansive family room with an elevated deck showcasing breathtaking hill country views - perfect for quiet mornings or late-night jam sessions under Texas skies. The primary suite and office are tucked away for peace and privacy, striking a perfect balance between creativity and comfort. This property isn't just a home - it's a creative compound and a one-of-a-kind opportunity to live, work, and create without compromise.

Map Location

Listing provided courtesy of Christopher Drayton of Levi Rodgers Real Estate Group. Last updated 2025-12-10 12:01:49.000000. Listing information © 2025 LERA MLS.

Michelle Doerr

Texas Licensed Real Estate Broker #0424230
Inquire Now
admin Real estate https://static.royacdn.com/Site-f5d1045a-1c2b-4719-a298-72f1862107a5/team/Michelle_new_photo.jpg realtor # # # https://static.royacdn.com/Site-f5d1045a-1c2b-4719-a298-72f1862107a5/team/Michelle_new_photo.jpg Doerr Realty - Best Realtors in San Antonio, Buy and Sell Your Home in Texas Best realtor in San Antonio TX. We specialize in residential real estate and luxury home sales throughout Texas. Call us to buy or sell your home Doerr Realty https://www.royacdn.com/unsafe/Site-f5d1045a-1c2b-4719-a298-72f1862107a5/MISC/SBP_DoerrRealty_Michelle_Front.jpg @michellesells Doerr Realty Doerr Realty - Best Realtors in San Antonio, Buy and Sell Your Home in Texas Best realtor in San Antonio TX. We specialize in residential real estate and luxury home sales throughout Texas. Call us to buy or sell your home! https://www.royacdn.com/unsafe/Site-f5d1045a-1c2b-4719-a298-72f1862107a5/MISC/SBP_DoerrRealty_Michelle_Front.jpg