Property Detail

11410 Whisper Moss

San Antonio TX 78230

$425,000

Status: Active

Property Details

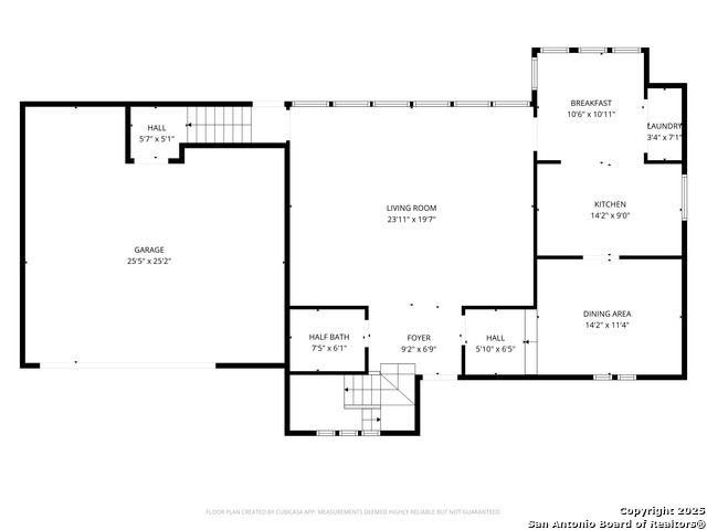
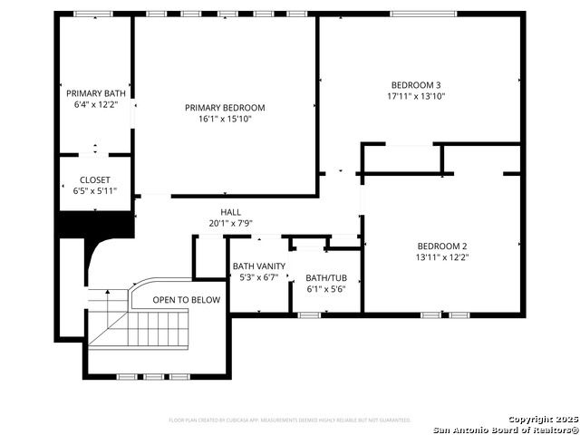
Description

This beautifully maintained comfortable and spacious home offers character and convenience in a community-rich neighborhood. Step into a spacious living room with recessed lighting, engineered wood floors, and a wall of windows overlooking a serene backyard with mature oak trees, a pergola, and a brick paver patio. The two-story front windows illuminate a cozy nook tucked under the curved staircase-perfect for reading, playtime, or a plant haven. No carpet downstairs, with tile and engineered wood throughout. The kitchen features trendy green cabinetry, stainless steel appliances, and opens to both a breakfast area and a flexible formal dining space that can double as a home office. The oversized owner's suite boasts cathedral ceilings and a wall of windows with backyard views. The fully renovated 2023 ensuite bath includes a double vanity and a walk-in shower with rain head, spray wand, bench, product alcove, window, frameless glass, and stylish tilework. Generously sized secondary bedrooms and a well-designed hall bath with double vanity and privacy door make mornings easy. The oversized garage fits Texas-sized trucks and offers bonus storage. Located steps from the community playground, this home is part of a friendly neighborhood with voluntary HOA and optional swim, tennis, and garden clubs. Enjoy small-town charm with events like Easter egg hunts and 4th of July bike parades-all while being centrally located near everything San Antonio has to offer. Recent updates include roof & water heater (2016) and upstairs HVAC (2020).

Map Location

Listing provided courtesy of Mary Nielsen of Perfect Home Realty. Last updated 2025-12-01 12:01:45.000000. Listing information © 2025 LERA MLS.

Michelle Doerr

Texas Licensed Real Estate Broker #0424230
Inquire Now
admin Real estate https://static.royacdn.com/Site-f5d1045a-1c2b-4719-a298-72f1862107a5/team/Michelle_new_photo.jpg realtor # # # https://static.royacdn.com/Site-f5d1045a-1c2b-4719-a298-72f1862107a5/team/Michelle_new_photo.jpg Doerr Realty - Best Realtors in San Antonio, Buy and Sell Your Home in Texas Best realtor in San Antonio TX. We specialize in residential real estate and luxury home sales throughout Texas. Call us to buy or sell your home Doerr Realty https://www.royacdn.com/unsafe/Site-f5d1045a-1c2b-4719-a298-72f1862107a5/MISC/SBP_DoerrRealty_Michelle_Front.jpg @michellesells Doerr Realty Doerr Realty - Best Realtors in San Antonio, Buy and Sell Your Home in Texas Best realtor in San Antonio TX. We specialize in residential real estate and luxury home sales throughout Texas. Call us to buy or sell your home! https://www.royacdn.com/unsafe/Site-f5d1045a-1c2b-4719-a298-72f1862107a5/MISC/SBP_DoerrRealty_Michelle_Front.jpg