Property Detail

9920 Fm 1101

Seguin TX 78155

$550,000

Status: Active

Property Details

Description

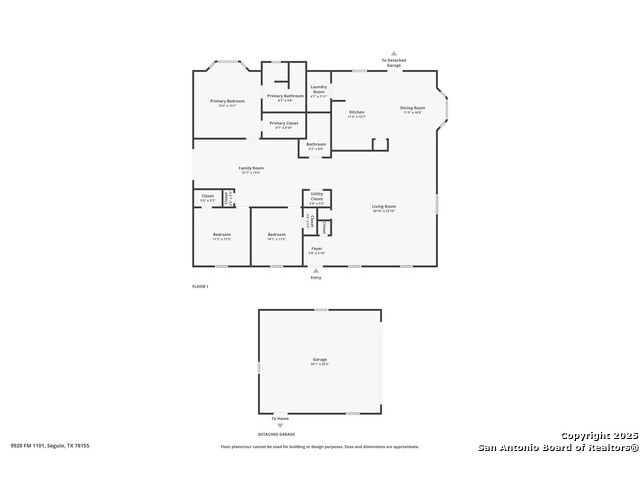
Country living, yet only minutes to New Braunfels, San Marcos and Seguin for shopping and fun! Drive up the circular drive to this one-story large ranch home (1,932 sq. ft.). It's in excellent shape and offers 3 beds and 2 baths sitting on 2.45 acres (per appraiser report). After a long day's work, relax on the (almost) full-length covered front porch. Inside, you'll enjoy preparing meals in the large kitchen open to the dining area. Everything you'd want is here: granite counters, solid wood cabinets, fridge, dishwasher, garbage disposal, oven, microwave, tile flooring and even an eating counter. Enjoy your meals in the dining area looking out over your land through the bay window. The wide-open family area, also with tile flooring, has room for large family gatherings, and you'll stay comfortable with the 2 ceiling fans. Have allergies? Not in this home with wood flooring in all 3 bedrooms and ceiling fans with lights. Wood blinds throughout the home. The two bathrooms are tastefully done with tile flooring and granite counters. Between the bedrooms is a large open area - what you turn it into is up to you...TV area? play area? music area? office? From this open area, go through the door to a large back deck to enjoy your view. Looking for storage? This has it! The oversized 2-car garage is detached and has an auto door opener and push pad, plus lots of shelving for storage. It also has a window and a walk-through door leading to the house. In addition, there is also a covered carport for a single vehicle metal top, fabric-sided. If you enjoy nature, sunshine, playing in the dirt you'll love the 5 garden boxes for growing flowers and vegetables. In addition, there's a 16 x 12 Hardiplank storage shed/workshop with a loft and an asphalt roof; a complete chicken coop providing outside play with lots of activities for the chickens inside; a 2-stall animal shelter complete with running water and separate rooms all covered by a metal roof. There is a back gate to easily access the stalls to move the animals (pigs, rabbits, goats, horses?). And when the weather cooperates, enjoy sitting on the bench overlooking the wet-weather pond/lake on the property. This home comes with all you need - including a tractor shed that includes the tractor, the post hole digger, bucket, shop vac, etc. - equipment easily worth 20K! The shed is lighted for the short winter days. Then there is another long shed with a metal roof and sides for storing whatever. Old-style fencing along the property lines and even a little wood bridge to walk across. The French drain was built to channel rainwater to fill the pond. The vegetation includes many different trees, including the Chinese elm tree and mulberry bushes. Lots of love has been poured into this home. Recent updates include painting inside and out including the loft shed (extra paint is in the loft shed for touch-ups). The septic was pumped, gutters installed; all water faucets have backflow bibs, a rainwater collector, 40-gallon water heater, furnace replaced 5 years ago. The house has a long-lasting metal roof. All outdoor touches, including the rustic furniture, picnic table, BBQs, and benches, come with the home! Lastly, the green pole, located near the front porch is ready for you to decorate with lights to make it a Christmas tree. No HOA! Schedule to see this home today - it won't last at this price!

Map Location

Listing provided courtesy of Christopher Watters of Watters International Realty. Last updated 2025-11-14 12:02:10.000000. Listing information © 2025 LERA MLS.

Michelle Doerr

Texas Licensed Real Estate Broker #0424230
Inquire Now
admin Real estate https://static.royacdn.com/Site-f5d1045a-1c2b-4719-a298-72f1862107a5/team/Michelle_new_photo.jpg realtor # # # https://static.royacdn.com/Site-f5d1045a-1c2b-4719-a298-72f1862107a5/team/Michelle_new_photo.jpg Doerr Realty - Best Realtors in San Antonio, Buy and Sell Your Home in Texas Best realtor in San Antonio TX. We specialize in residential real estate and luxury home sales throughout Texas. Call us to buy or sell your home Doerr Realty https://www.royacdn.com/unsafe/Site-f5d1045a-1c2b-4719-a298-72f1862107a5/MISC/SBP_DoerrRealty_Michelle_Front.jpg @michellesells Doerr Realty Doerr Realty - Best Realtors in San Antonio, Buy and Sell Your Home in Texas Best realtor in San Antonio TX. We specialize in residential real estate and luxury home sales throughout Texas. Call us to buy or sell your home! https://www.royacdn.com/unsafe/Site-f5d1045a-1c2b-4719-a298-72f1862107a5/MISC/SBP_DoerrRealty_Michelle_Front.jpg