Property Detail

2026 Zephyr Lily

San Antonio TX 78221

$195,000

Status: Active

Property Details

Description

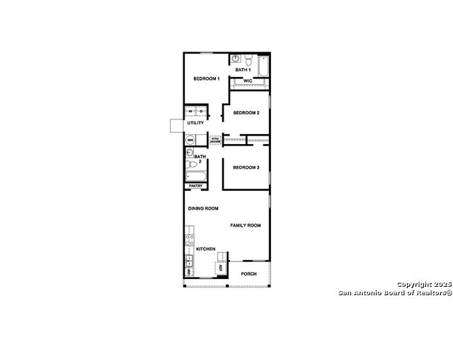
Welcome to The Gabriel, featured at Sonora in San Antonio, TX, an expertly designed 1-story home offering 1002 square feet of comfortable living space. With 3 bedrooms and 2 bathrooms, this home is perfect for families, couples, or individuals seeking additional room to grow. The Gabriel replaces a traditional garage with a spacious driveway, providing ample parking space and added convenience. The home's exterior is available in two attractive elevation options, both crafted with durable, low-maintenance materials that ensure long-lasting beauty. The Gabriel boasts an open concept interior layout that maximizes the available space, creating a seamless flow between the living room, dining area, and kitchen. The kitchen is a standout feature, complete with sleek quartz countertops, stainless steel appliances, and contemporary shaker-style cabinets, providing both style and function. This inviting space is perfect for cooking meals or hosting guests. The main bedroom offers a tranquil retreat with plush carpet flooring and a spacious walk-in closet for all your storage needs. The ensuite bathroom includes a single vanity with a quartz countertop, complemented by a combined shower and bathtub, providing a relaxing oasis at the end of the day. Additional features of The Gabriel include quartz countertops in all bathrooms and hard surface flooring throughout the living room, kitchen, and all wet areas, making cleaning and maintenance a breeze. With its thoughtful design and modern finishes, The Gabriel offers a stylish, low-maintenance living space perfect for those seeking a contemporary home in our Sonora community.

Map Location

Listing provided courtesy of R.J. Reyes of Keller Williams Heritage. Last updated 2025-11-18 12:02:01.000000. Listing information © 2025 LERA MLS.

Michelle Doerr

Texas Licensed Real Estate Broker #0424230
Inquire Now
admin Real estate https://static.royacdn.com/Site-f5d1045a-1c2b-4719-a298-72f1862107a5/team/Michelle_new_photo.jpg realtor # # # https://static.royacdn.com/Site-f5d1045a-1c2b-4719-a298-72f1862107a5/team/Michelle_new_photo.jpg Doerr Realty - Best Realtors in San Antonio, Buy and Sell Your Home in Texas Best realtor in San Antonio TX. We specialize in residential real estate and luxury home sales throughout Texas. Call us to buy or sell your home Doerr Realty https://www.royacdn.com/unsafe/Site-f5d1045a-1c2b-4719-a298-72f1862107a5/MISC/SBP_DoerrRealty_Michelle_Front.jpg @michellesells Doerr Realty Doerr Realty - Best Realtors in San Antonio, Buy and Sell Your Home in Texas Best realtor in San Antonio TX. We specialize in residential real estate and luxury home sales throughout Texas. Call us to buy or sell your home! https://www.royacdn.com/unsafe/Site-f5d1045a-1c2b-4719-a298-72f1862107a5/MISC/SBP_DoerrRealty_Michelle_Front.jpg