Property Detail

275 Trail

Pleasanton TX 78064

$290,000

Status: Active

Property Details

Description

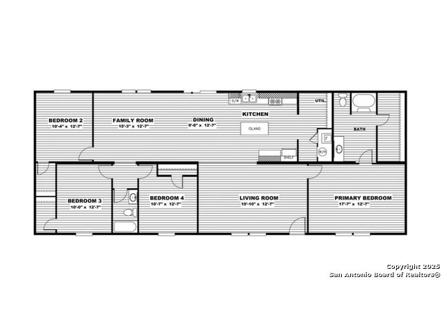
Escape to this ideal Quiet country living home Nestled on almost 3 acres (2.5 acers) providing both privacy and space for all your lifestyle needs. Cleared and level and fenced, ready for your dream custom life in your new home. Enjoy paved road frontage and to convenient access to two major highways (IH-37 and Hwy 97), facilitating a convenient commute to Pleasanton 5M, Floresville 20M, or San Antonio 35M. The lot is approximately 325 feet wide and 360 feet deep, Paved roads and entry to subdivision adding character and curb appeal to the exterior. Home offers roomy open floor plan with split bedroom design. This charming home combines elegance and comfort with thoughtful design. Inside, you'll find beautiful real wood cabinets and detailed crown molding throughout, creating a cohesive and timeless look in every room. The spacious kitchen is a standout feature, complete with a large pantry, Island kitchen that provides ample space for cooking, meal prep, and entertaining. An Office for those who like to work from home. Hardwood floors. Utility inside. Step outside to enjoy the inviting front porch deck, perfect for morning coffee or greeting guests, or family, ideal for relaxing or hosting gatherings while overlooking the peaceful surroundings. Storage/workshop building, pole barn/a shed plus a carport. Property is fenced Therefor home is further enhanced by adding your pets in this new home like up to 2 horses. This property offers the perfect combination of indoor elegance and outdoor tranquility, Set your appointment today.

Map Location

Listing provided courtesy of Ammon Farzampour of 3Sixty Real Estate Group. Last updated 2025-11-30 12:01:50.000000. Listing information © 2025 LERA MLS.

Michelle Doerr

Texas Licensed Real Estate Broker #0424230
Inquire Now
admin Real estate https://static.royacdn.com/Site-f5d1045a-1c2b-4719-a298-72f1862107a5/team/Michelle_new_photo.jpg realtor # # # https://static.royacdn.com/Site-f5d1045a-1c2b-4719-a298-72f1862107a5/team/Michelle_new_photo.jpg Doerr Realty - Best Realtors in San Antonio, Buy and Sell Your Home in Texas Best realtor in San Antonio TX. We specialize in residential real estate and luxury home sales throughout Texas. Call us to buy or sell your home Doerr Realty https://www.royacdn.com/unsafe/Site-f5d1045a-1c2b-4719-a298-72f1862107a5/MISC/SBP_DoerrRealty_Michelle_Front.jpg @michellesells Doerr Realty Doerr Realty - Best Realtors in San Antonio, Buy and Sell Your Home in Texas Best realtor in San Antonio TX. We specialize in residential real estate and luxury home sales throughout Texas. Call us to buy or sell your home! https://www.royacdn.com/unsafe/Site-f5d1045a-1c2b-4719-a298-72f1862107a5/MISC/SBP_DoerrRealty_Michelle_Front.jpg