Property Detail

5047 Cacti Orchard

San Antonio TX 78222

$316,250

Status: Active

Property Details

Description

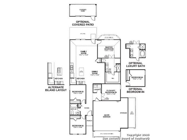
***ESTIMATED COMPLETION: MARCH 2026*** Discover this exceptional new construction home at 5047 Cacti Orchard, San Antonio, built by M/I Homes. This thoughtfully designed single-story home offers 1,687 square feet of comfortable living space featuring an open-concept layout perfect for daily life and entertaining. Home Features: * 3 spacious bedrooms with owner's bedroom conveniently located on the main level * 2 well-appointed bathrooms * Open-concept living space that seamlessly connects the main living areas * 1,687 square feet of thoughtfully planned interior space * Single-story floorplan for easy accessibility This new construction home showcases quality craftsmanship and attention to detail throughout. The open-concept design creates a flowing environment between the kitchen, dining, and living areas, making it ideal for both relaxation and social gatherings. The owner's bedroom is strategically positioned on the main level, providing privacy and convenience. With 2 bathrooms serving the home's 3 bedrooms, residents and guests will enjoy comfortable accommodations. Located in a desirable San Antonio neighborhood, this home offers proximity to beautiful parks where you can enjoy outdoor activities and recreation. The surrounding area features well-established neighborhoods with quality design elements that enhance the community's appeal. Built by the reputable M/I Homes, this home represents excellent construction standards and reliable craftsmanship. The new construction status means you'll be the first to call this beautiful space home, with everything fresh and move-in ready. Experience the perfect blend of functionality and comfort in this well-designed San Antonio home.

Map Location

Listing provided courtesy of Jaclyn Calhoun of Escape Realty. Last updated 2025-12-02 12:01:50.000000. Listing information © 2025 LERA MLS.

Michelle Doerr

Texas Licensed Real Estate Broker #0424230
Inquire Now
admin Real estate https://static.royacdn.com/Site-f5d1045a-1c2b-4719-a298-72f1862107a5/team/Michelle_new_photo.jpg realtor # # # https://static.royacdn.com/Site-f5d1045a-1c2b-4719-a298-72f1862107a5/team/Michelle_new_photo.jpg Doerr Realty - Best Realtors in San Antonio, Buy and Sell Your Home in Texas Best realtor in San Antonio TX. We specialize in residential real estate and luxury home sales throughout Texas. Call us to buy or sell your home Doerr Realty https://www.royacdn.com/unsafe/Site-f5d1045a-1c2b-4719-a298-72f1862107a5/MISC/SBP_DoerrRealty_Michelle_Front.jpg @michellesells Doerr Realty Doerr Realty - Best Realtors in San Antonio, Buy and Sell Your Home in Texas Best realtor in San Antonio TX. We specialize in residential real estate and luxury home sales throughout Texas. Call us to buy or sell your home! https://www.royacdn.com/unsafe/Site-f5d1045a-1c2b-4719-a298-72f1862107a5/MISC/SBP_DoerrRealty_Michelle_Front.jpg