Property Detail

1755 Brandenburg

San Antonio TX 78232

$324,900

Status: Active

Property Details

Description

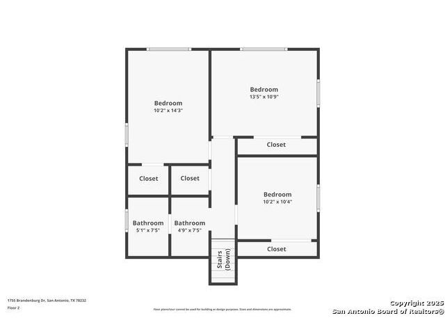
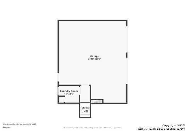
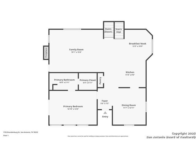
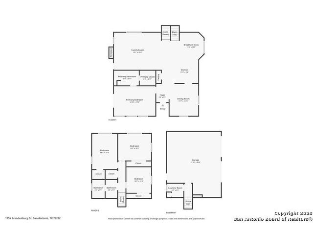
Welcome to your beautifully remodeled retreat in the heart of North Central San Antonio!Sitting on a spacious corner lot, this updated home blends modern comfort with timeless charm. Step inside to discover brand-new flooring (Oct 2025), fresh interior paint (Oct 2025), and renewed bathrooms that make the home feel truly move-in ready. The inviting open floor plan creates effortless flow - the refreshed kitchen opens directly into the dining area, leading into a soaring living room with lofty ceilings and an impressive stone fireplace as the centerpiece. The primary bedroom offers a true getaway with high ceilings, great natural light, and its own private exit to the backyard while also separated from the secondary bedrooms for true privacy. Step outside to a generous outdoor living area featuring a large covered patio, ideal for grilling, relaxing, or entertaining year-round. Mature trees in the front yard add charm, shade, and curb appeal. Location is everything - and this one delivers. Situated just minutes from Loop 1604, Hwy 281, and Wurzbach Parkway, commuting around the city is quick and convenient whether you're heading to the airport, downtown, Stone Oak, or medical centers. Nearby you'll find abundant shopping and dining at Northwoods, Huebner Oaks, and the Airport/281 corridor. Outdoor lovers will appreciate the proximity to McAllister Park, offering miles of trails, playgrounds, sports fields, and dog parks and also benefit from access to highly regarded NEISD schools.

Map Location

Listing provided courtesy of Christopher Drayton of Levi Rodgers Real Estate Group. Last updated 2025-11-26 12:01:35.000000. Listing information © 2025 LERA MLS.

Michelle Doerr

Texas Licensed Real Estate Broker #0424230
Inquire Now
admin Real estate https://static.royacdn.com/Site-f5d1045a-1c2b-4719-a298-72f1862107a5/team/Michelle_new_photo.jpg realtor # # # https://static.royacdn.com/Site-f5d1045a-1c2b-4719-a298-72f1862107a5/team/Michelle_new_photo.jpg Doerr Realty - Best Realtors in San Antonio, Buy and Sell Your Home in Texas Best realtor in San Antonio TX. We specialize in residential real estate and luxury home sales throughout Texas. Call us to buy or sell your home Doerr Realty https://www.royacdn.com/unsafe/Site-f5d1045a-1c2b-4719-a298-72f1862107a5/MISC/SBP_DoerrRealty_Michelle_Front.jpg @michellesells Doerr Realty Doerr Realty - Best Realtors in San Antonio, Buy and Sell Your Home in Texas Best realtor in San Antonio TX. We specialize in residential real estate and luxury home sales throughout Texas. Call us to buy or sell your home! https://www.royacdn.com/unsafe/Site-f5d1045a-1c2b-4719-a298-72f1862107a5/MISC/SBP_DoerrRealty_Michelle_Front.jpg