Property Detail

20915 Stonework Spur

San Antonio TX 78266

$435,035

Status: Active

Property Details

Description

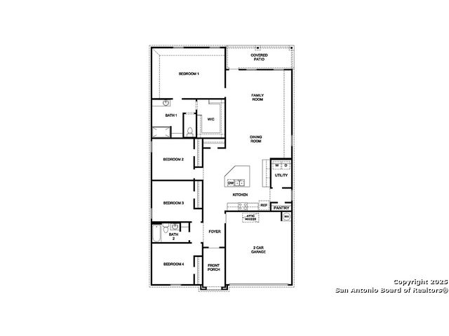
Step into The Kingston floor plan at Brookstone Creek located in San Antonio, TX, a single story home offering 4 bedrooms and 2 bathrooms. This home also features 2 classic front exteriors, a 2-car garage and 2024 square feet of comfortable living. The Kingston features and open-concept layout that blends together to form the perfect space for everyday living. An inviting foyer welcomes you into the kitchen, complete with a natural gas cooking range, stainless steel appliances, subjway tile backsplash, quartz countertops and shaker style cabinets. The kitchen island faces the dining area and living room and offers a deep, single bowl sink and extra countertop space, perfect for bar seating. The private main bedroom suite is located off the living room towards the back of the home and features quality carpet, large windows and a ceiling fan. Your connected bathroom is an oasis, complete with dual vanity sinks, cultured marble countertops, a tiled walk-in shower, shaker style cabinets and a separate room for the toilet. You'll have all the space you need to get ready in the morning with a large walk-in closet. You'll find quality carpet and closets in all of your secondary bedrooms, which can also be used as offices, play rooms or other bonus rooms. Head out the back door located off the living room to find the rear covered patio (per plan) and full yard landscaping & irrigation. Additional features of The Kingston include hard surface flooring at entry, downstairs, halls, living room, kitchen, and dining/breakfast area, tile in all bathrooms and utility room, pre-plumb for water softener loop and faux wood window blinds throughoutt the home. This home also includes our HOME IS CONNECTED base package. Using one central hub that talks to all the devices in your home, you can control the lights, thermostat and locks, all from your cellular device.

Map Location

Listing provided courtesy of R.J. Reyes of Keller Williams Heritage. Last updated 2025-11-26 12:01:37.000000. Listing information © 2025 LERA MLS.

Michelle Doerr

Texas Licensed Real Estate Broker #0424230
Inquire Now
admin Real estate https://static.royacdn.com/Site-f5d1045a-1c2b-4719-a298-72f1862107a5/team/Michelle_new_photo.jpg realtor # # # https://static.royacdn.com/Site-f5d1045a-1c2b-4719-a298-72f1862107a5/team/Michelle_new_photo.jpg Doerr Realty - Best Realtors in San Antonio, Buy and Sell Your Home in Texas Best realtor in San Antonio TX. We specialize in residential real estate and luxury home sales throughout Texas. Call us to buy or sell your home Doerr Realty https://www.royacdn.com/unsafe/Site-f5d1045a-1c2b-4719-a298-72f1862107a5/MISC/SBP_DoerrRealty_Michelle_Front.jpg @michellesells Doerr Realty Doerr Realty - Best Realtors in San Antonio, Buy and Sell Your Home in Texas Best realtor in San Antonio TX. We specialize in residential real estate and luxury home sales throughout Texas. Call us to buy or sell your home! https://www.royacdn.com/unsafe/Site-f5d1045a-1c2b-4719-a298-72f1862107a5/MISC/SBP_DoerrRealty_Michelle_Front.jpg