Property Detail

14109 May Mist

San Antonio TX 78253

$535,000

Status: Active

Property Details

Description

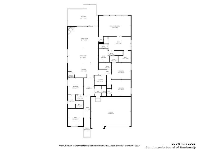
MUST SEE-Single story! This beautifully built 2022 single-story home located in the Stevens Ranch community offering 4 bedrooms and 3 full bathrooms across approximately 2,695 sq ft. The home features an open floor plan with a combination living/dining area, high ceilings, island kitchen with eat-in space, and a cozy family-room fireplace. A dedicated study/library and utility room inside add functional convenience. The master suite and a secondary full bath are on the first floor, ensuring easy access and single-level living. Interiors include a blend of carpet and ceramic tile flooring, double-pane windows, energy-efficient HVAC with zoned cooling, and pre-wired security features. Outside, enjoy a covered patio, privacy fencing, sprinkler system, and a greenbelt lot that offers added privacy and an outdoor sense of space. The home sits within a well-kept subdivision that offers community amenities including a neighborhood park/playground - ideal for families or active lifestyles. This home is part of a growing, in-demand area. The home falls under the Northside Independent School District (NISD) with access to Langley Elementary School, Bernal Middle School, and Harlan High School. Residents benefit from a quiet, family-friendly neighborhood vibe, sidewalks, and greenbelt surroundings.

Map Location

Listing provided courtesy of Antonio Flores of LPT Realty, LLC. Last updated 2025-12-12 12:01:48.000000. Listing information © 2025 LERA MLS.

Michelle Doerr

Texas Licensed Real Estate Broker #0424230
Inquire Now
admin Real estate https://static.royacdn.com/Site-f5d1045a-1c2b-4719-a298-72f1862107a5/team/Michelle_new_photo.jpg realtor # # # https://static.royacdn.com/Site-f5d1045a-1c2b-4719-a298-72f1862107a5/team/Michelle_new_photo.jpg Doerr Realty - Best Realtors in San Antonio, Buy and Sell Your Home in Texas Best realtor in San Antonio TX. We specialize in residential real estate and luxury home sales throughout Texas. Call us to buy or sell your home Doerr Realty https://www.royacdn.com/unsafe/Site-f5d1045a-1c2b-4719-a298-72f1862107a5/MISC/SBP_DoerrRealty_Michelle_Front.jpg @michellesells Doerr Realty Doerr Realty - Best Realtors in San Antonio, Buy and Sell Your Home in Texas Best realtor in San Antonio TX. We specialize in residential real estate and luxury home sales throughout Texas. Call us to buy or sell your home! https://www.royacdn.com/unsafe/Site-f5d1045a-1c2b-4719-a298-72f1862107a5/MISC/SBP_DoerrRealty_Michelle_Front.jpg