Property Detail

4931 Bending Trail

San Antonio TX 78247

$265,000

Status: Active

Property Details

Description

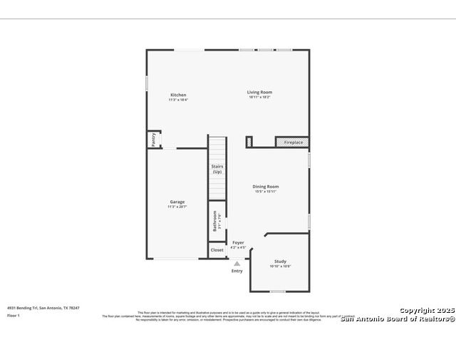
This is 4931 Bending Trail, a spacious 3-bedroom, 2.5-bath home offering a balanced layout designed for everyday comfort and convenience. The first floor begins with a dedicated office, providing an ideal setup for working from home. A formal dining area connects to an expansive living room, highlighted by a fireplace that adds warmth and character to the space. The kitchen features generous cabinet storage, ample counter space, and an open flow that keeps you connected while cooking or entertaining. Upstairs, a versatile loft provides room for a media setup, play space, or second living area. All bedrooms are located on the upper level, including a large primary suite with its own full bath and a tub/shower combination. Two additional well-sized bedrooms and a conveniently placed laundry room complete the second floor Step outside to a private backyard accented by a mature shade tree, an inviting place to unwind or enjoy outdoor activities. Located near shopping, dining, parks, and schools within the North East ISD, this home also offers quick access to major highways for an easy commute. Schedule your showing today.

Map Location

Listing provided courtesy of Joel Benites of Exquisite Properties, LLC. Last updated 2025-12-12 12:01:45.000000. Listing information © 2025 LERA MLS.

Michelle Doerr

Texas Licensed Real Estate Broker #0424230
Inquire Now
admin Real estate https://static.royacdn.com/Site-f5d1045a-1c2b-4719-a298-72f1862107a5/team/Michelle_new_photo.jpg realtor # # # https://static.royacdn.com/Site-f5d1045a-1c2b-4719-a298-72f1862107a5/team/Michelle_new_photo.jpg Doerr Realty - Best Realtors in San Antonio, Buy and Sell Your Home in Texas Best realtor in San Antonio TX. We specialize in residential real estate and luxury home sales throughout Texas. Call us to buy or sell your home Doerr Realty https://www.royacdn.com/unsafe/Site-f5d1045a-1c2b-4719-a298-72f1862107a5/MISC/SBP_DoerrRealty_Michelle_Front.jpg @michellesells Doerr Realty Doerr Realty - Best Realtors in San Antonio, Buy and Sell Your Home in Texas Best realtor in San Antonio TX. We specialize in residential real estate and luxury home sales throughout Texas. Call us to buy or sell your home! https://www.royacdn.com/unsafe/Site-f5d1045a-1c2b-4719-a298-72f1862107a5/MISC/SBP_DoerrRealty_Michelle_Front.jpg